pro bono lyndale neighborhood association

Every year, the American Institute of Architects, Minnesota Chapter hosts the Search For Shelter Design Charette at The College of Design, University of Minnesota. This weekend charette is attended by various design and construction professionals as well as architecture and design students. Teams are formed and assigned a project. The Lyndale Neighborhood Association was one of 2009's four chosen projects.

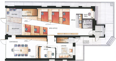
The building is located at 3537 Nicollet Avenue in Minneapolis, Minnesota and serves as a non-profit community center whose mission is to "create a safe, vibrant and sustainable community." for the Lyndale Neighborhood. The first floor houses the LNA's offices; the second is a residential apartment and the lower level houses storage.

OBJECTIVES
  • Address Site and Water Issues
  • Explore Sustainable Design Options
  • Explore Interior Design Ideas in Regards to Office Space, and Community Needs.
CHALLENGES
  • A long and narrow space
  • Little to no budget
  • Reusing materials and implementing greener processes to support the mission statement
  • Meeting accessibility code

CONCEPT
To design conceptual solutions for the Lyndale Neighborhood Association space based on the idea of "Recycle, Reduce, Reuse.

PROJECT INFORMATION
Client: The Lyndale Neighborhood Association, Minneapolis, Minnesota
LNA Design Team: Tim Bicknell, Architect, Co-Leader
      Johanna Friendshuh, Interior Designer, Co-Leader
      Dean Klabunde, Architecture Student
      Christina McDaniel, Architecture Student
      Ben Ptacek, Architectural Intern
      Tina Vasinda, Architectural Intern
Project Size: 3,000 S.F.