Kaleidoscope

Kaleidoscope is a non-profit after school and summer program that provides academic help as well as play time for children in pre- kindergarten through 8th grade. In December 2009, Kaleidoscope is moving into a new space provided by Lutheran Social Services of Minnesota and Messiah Lutheran Church. Quendy Raymond is the Executive Director of Kaleidoscope, and she has asked the AIA Minnesota, Housing Advocacy Committee for help.

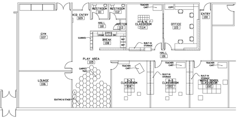
Quendy has requested that our team look at Kaleidoscope's current plan, and creatively rework the space to have more storage, utilize the square footage and above all be KID-FRIENDLY.

CHALLENGE
Work with an existing floorplan that has been designed for a business, not a learning space for kids.

CONCEPT
Kaleidoscope has movement, color, shape...

  • Portable
  • Foldable
  • Free Flowing
  • Stackable
  • Soft
  • Reusable
  • Flexible
  • Comfy
  • Organic
PROJECT TEAM
Johanna Friendshuh - Co-Leader, Interior Designer
Temsiri Green, Student
Ken Koense - Co-Leader, Architect
Alicia Liebel, Student
Amanda Stel, Student
Mai Xhiang, Interior Designer